2016
Educacional - Centro de Idiomas Senac
Nova Sede do Centro de Idiomas - Senac Regional Boa Vista - RR
Este projeto, em especial foi um desafio excepcional, mas gratificante!
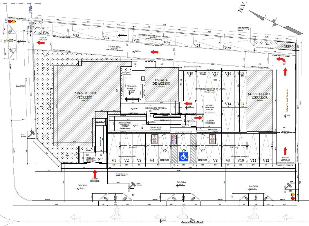
A dificuldade inicialmente, foi adequar o programa de necessidades as dimensões do terreno. Outra questão, foi atender o número de vagas de acordo com a legislação local, pois diferentemente de outros cidades, as dimensões são diferentes de qualquer outro lugar, pois ao invés de 5 metros de comprimento, longitudinalmente a vaga tem que medir 6 metros.
O partido arquitetônico, foi também um desafio, pois como proposta inicial, o cliente cogitou a possibilidade de a edificação ser modular, ou seja, em containers, mas a ideia não foi adiante e foi sugerida então uma Estrutura Mista, em Perfis Metálicos e Concreto Armado. Como estrutura de piso, foi utilizado o Painel Wall em toda a edificação. Mas o desafio maior, foi resolver a logística, pois toda Estrutura Metálica, foi produzida a 800 Km, em Manaus, assim como o Elevador e o Gerador. Outros componentes mais específicos, como os Brises, também foram adquiridos fora do estado.
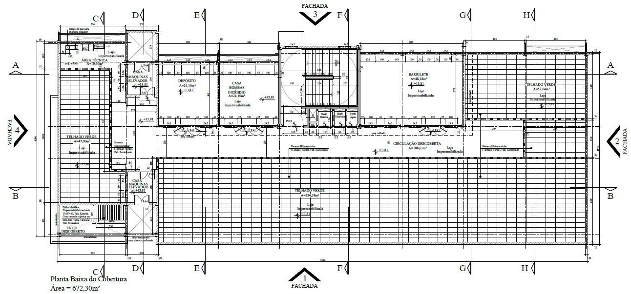
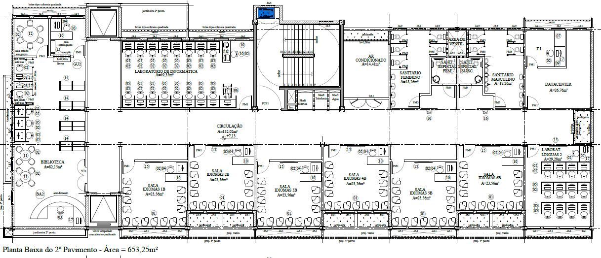
A Edificação é contemplada por Pavimento Térreo (acesso), 03 Pavimentos com Salas de Aula e setores Administrativos e Cobertura.
Área Total construída é igual à 3.338,43m²
Evolução da obra - Locação - Fabricação das peças metálicas - Montagem da Estrutura Mista e Finalização
Plantas
Perspectivas
























